| 空间:客厅 | 风格:欧式 | 人气:8275 |
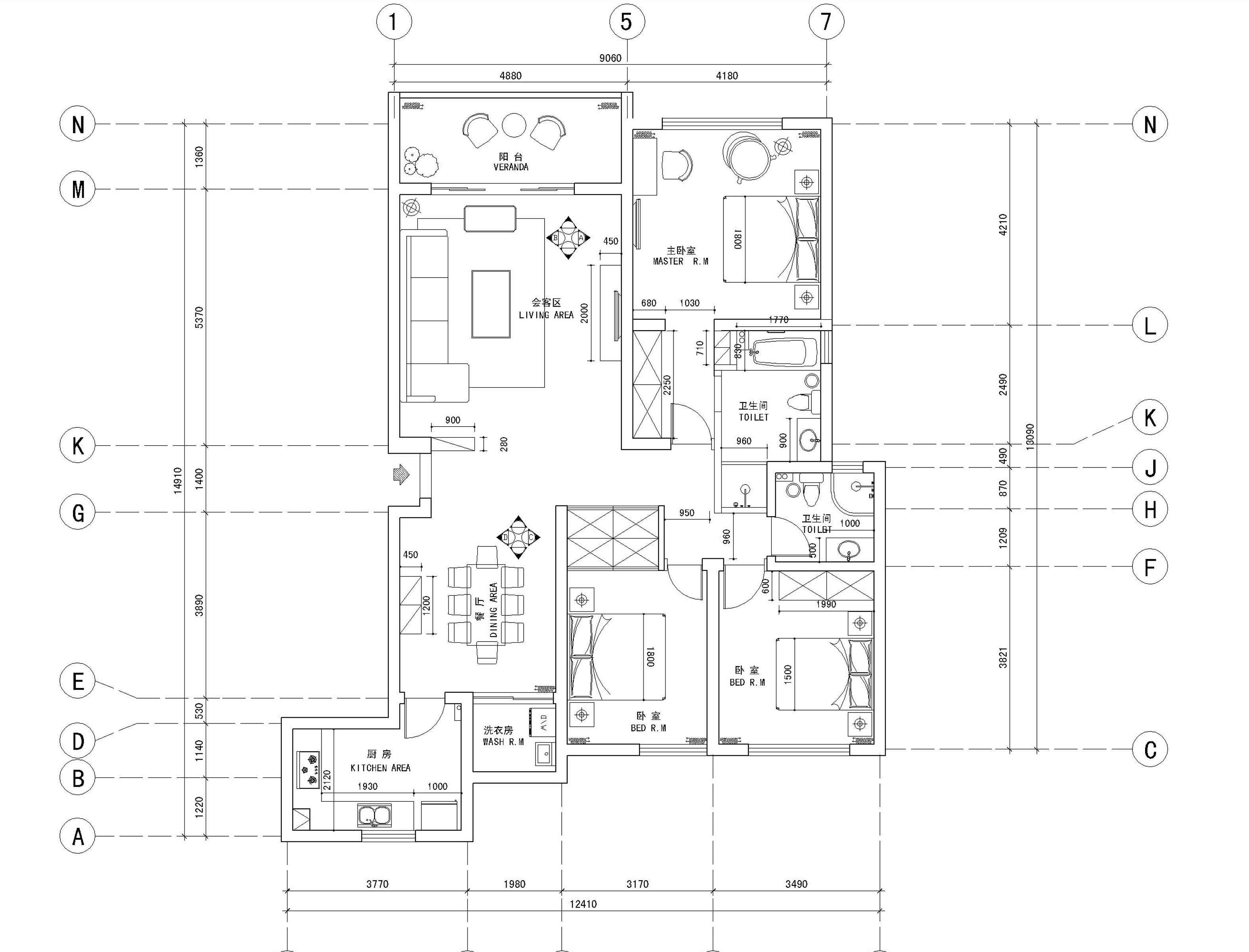
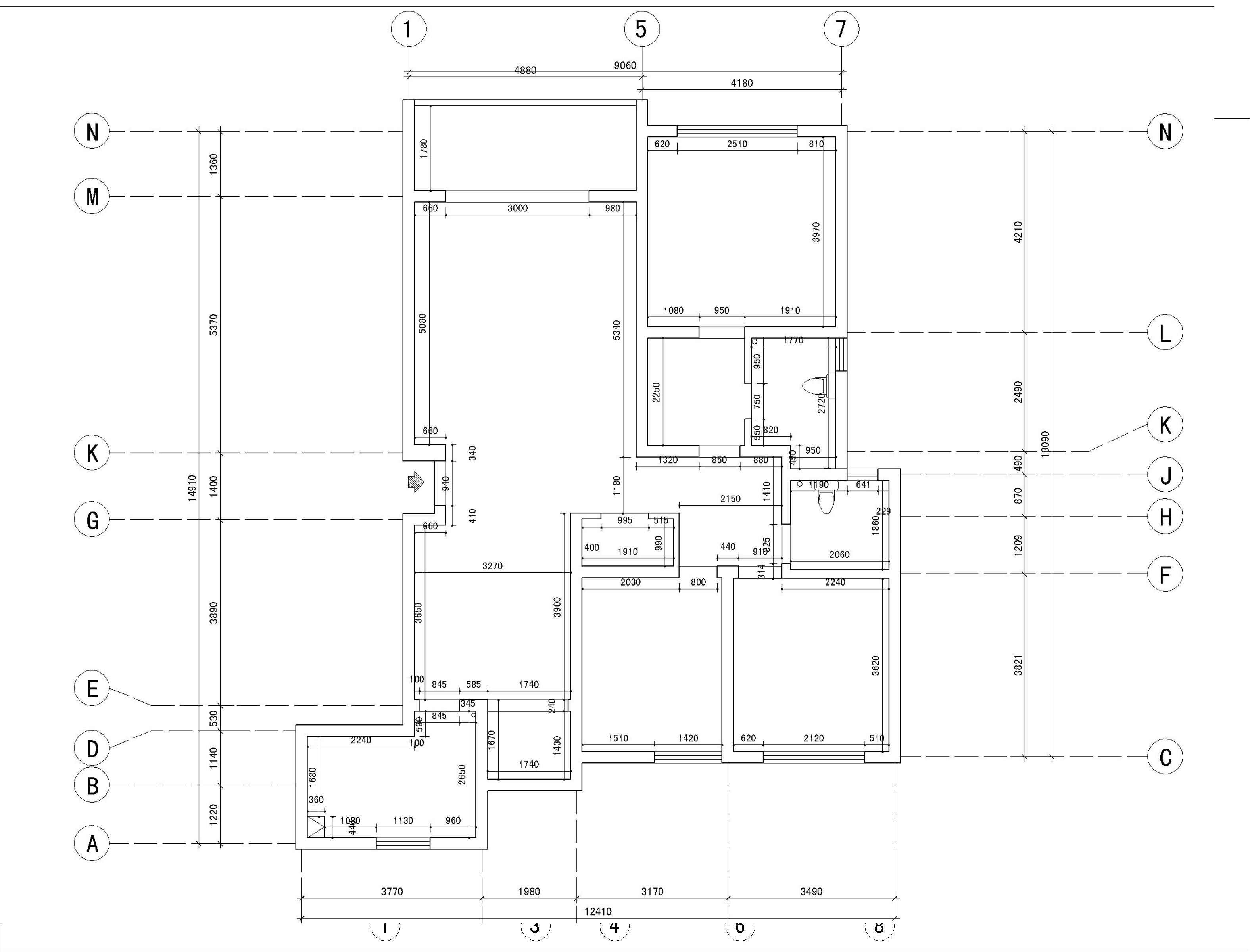
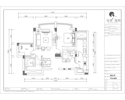
| 户型:三室二厅 | 楼盘: 万濠华府 | 面积:0平米 |
| 简介: 作品介绍: 设计师: 王香 项目名称:中南世纪花城业主背景:三口之家 工程师 户型:普通 风格:简约欧式 房屋套型:三室两厅建筑面积:160平方米装修材料:墙纸、实木地板、大理石等。 合同报价: 设计说明:漫步于这个空间之中,会让人有种措手不及的感觉,因为你会不知道该如何去描述这样的一番景致,它将华丽与时尚外化并且演绎得淋漓尽致,却又不失经典的内敛气韵。事实上,唯有让经典与现代的元素完美的结合在一起,用既定元素彰显无限个性色彩,使心情随心所欲地在空间释放,才是个性生活的真正意涵。
|


欧洲环保标准,杰出施工工艺
执前沿潮流牛耳
客户美誉度高达98.5%
贴心、省心更放心
| 关于安莱 | 经典案例 | 安莱服务 | 装修百科 | 品牌动态 |
安莱公众号
|
手机官网
|
全国热线 051380309999 |
|||||
| 公司简介 余承轩国际工作室 荣誉资质 企业文化 安莱装饰宣传片 联系我们 | 美式 北欧 欧式 地中海 东南亚 日式 新古典 | 楼盘户型 精英团队 视频样板房 安莱服务 | 家装经验 家居风水 家居软装 流行趋势 装饰常识 | 安莱新闻 活动专栏 行业新闻 |