| 空间:客厅 | 风格:新中式 | 人气:12247 |
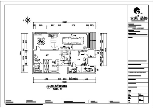
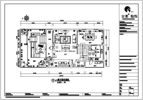
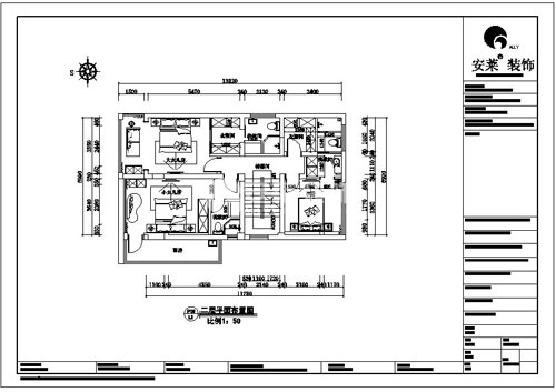
| 户型:别墅 | 楼盘: 天虹花园 | 面积:420平米 |
| 简介:设计理念设计师在本案的设计上充分运用了现代中式的风格,传统中式的魅力散落在居室的每一个角落,幽幽古韵,清雅脱俗。部分欧式家具突显现代时尚气息且舒适实用,在古典的东方文化的碰撞下,越发显出神秘气质、体现高雅豪华气氛,使整个空间达到融会贯通的效果。 |










欧洲环保标准,杰出施工工艺
执前沿潮流牛耳
客户美誉度高达98.5%
贴心、省心更放心
| 关于安莱 | 经典案例 | 安莱服务 | 装修百科 | 品牌动态 |
安莱公众号
|
手机官网
|
全国热线 051380309999 |
|||||
| 公司简介 余承轩国际工作室 荣誉资质 企业文化 安莱装饰宣传片 联系我们 | 美式 北欧 欧式 地中海 东南亚 日式 新古典 | 楼盘户型 精英团队 视频样板房 安莱服务 | 家装经验 家居风水 家居软装 流行趋势 装饰常识 | 安莱新闻 活动专栏 行业新闻 |