| 空间:走廊 | 风格:欧式 | 人气:11585 |
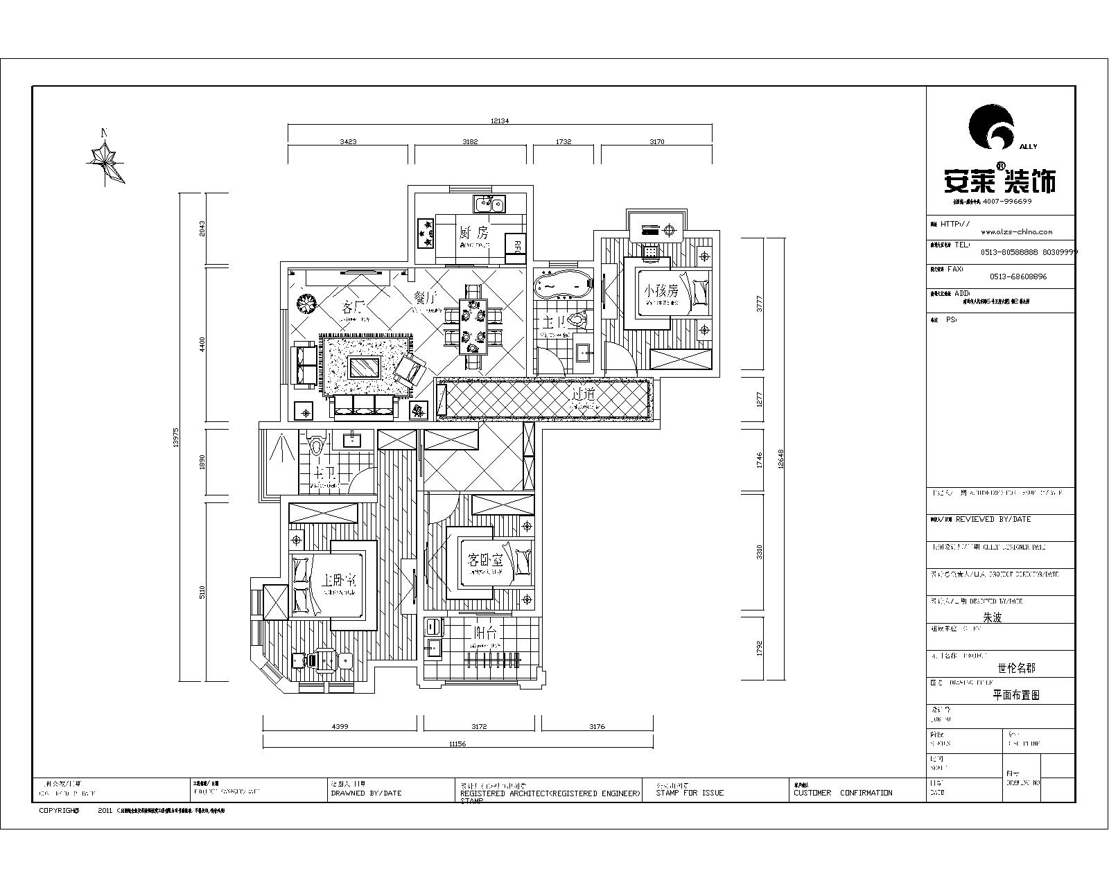
| 户型:三室一厅 | 楼盘: 帝奥·世伦名郡 | 面积:147平米 |
| 简介:本套方案的结构在过道的位置不够合理,有个储藏比较浪费。在布局改造中将原有的储藏改掉变成过道兼储藏室,主卧室空间的半圆形阳台比较浪费,改造后可以变成储藏兼书桌,增加了整个空间储藏功能,客厅还能将沙发背景进行延伸,使整个空间变的有序。 |



欧洲环保标准,杰出施工工艺
执前沿潮流牛耳
客户美誉度高达98.5%
贴心、省心更放心
| 关于安莱 | 经典案例 | 安莱服务 | 装修百科 | 品牌动态 |
安莱公众号
|
手机官网
|
全国热线 051380309999 |
|||||
| 公司简介 余承轩国际工作室 荣誉资质 企业文化 安莱装饰宣传片 联系我们 | 美式 北欧 欧式 地中海 东南亚 日式 新古典 | 楼盘户型 精英团队 视频样板房 安莱服务 | 家装经验 家居风水 家居软装 流行趋势 装饰常识 | 安莱新闻 活动专栏 行业新闻 |