| 空间:餐厅 | 风格:东南亚 | 人气:17874 |
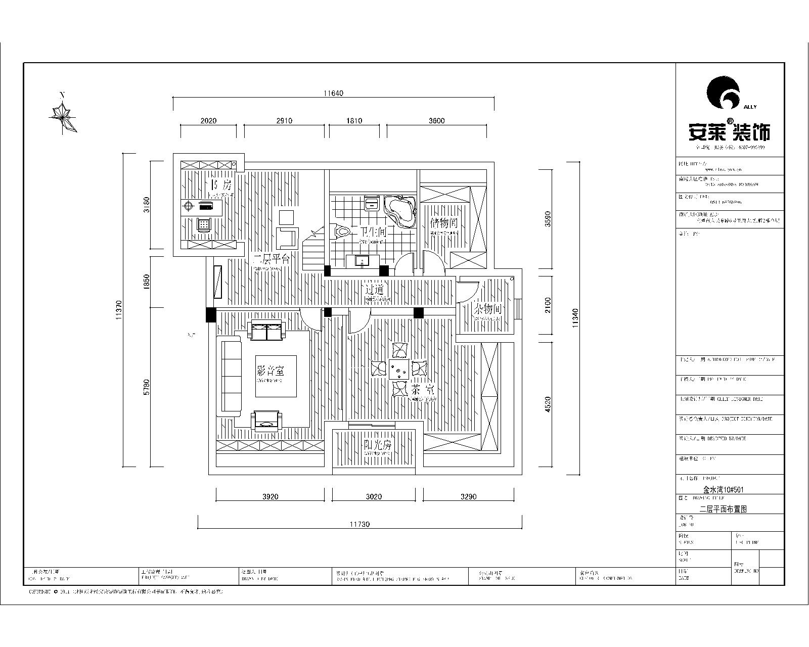
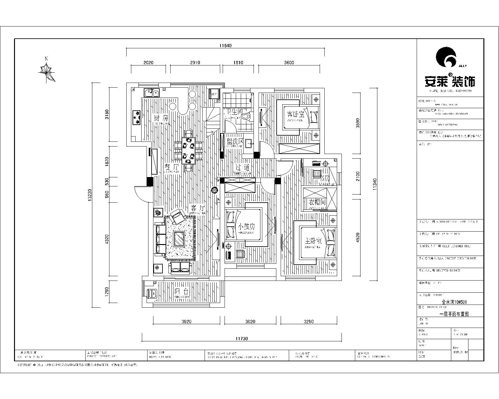
| 户型:三室二厅 | 楼盘: 金水湾 | 面积:260平米 |
| 简介:本套方案的结构在楼梯的位置不够合理,有个后阳台比较浪费。在布局改造中将原有的后阳台打通,厨房区域比较浪费,改造后可以变成开放式厨房,整个空间的开放,变的豁然开朗,空间一下子变的很大。将楼梯融入整个厨房和餐厅的空间,使空间比较合理。 |




欧洲环保标准,杰出施工工艺
执前沿潮流牛耳
客户美誉度高达98.5%
贴心、省心更放心
| 关于安莱 | 经典案例 | 安莱服务 | 装修百科 | 品牌动态 |
安莱公众号
|
手机官网
|
全国热线 051380309999 |
|||||
| 公司简介 余承轩国际工作室 荣誉资质 企业文化 安莱装饰宣传片 联系我们 | 美式 北欧 欧式 地中海 东南亚 日式 新古典 | 楼盘户型 精英团队 视频样板房 安莱服务 | 家装经验 家居风水 家居软装 流行趋势 装饰常识 | 安莱新闻 活动专栏 行业新闻 |