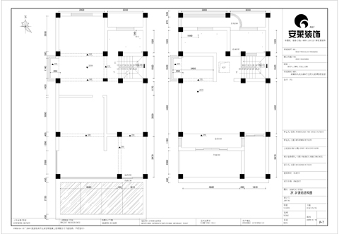
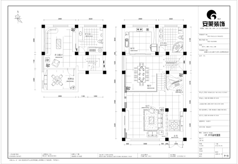
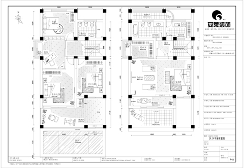
| 空间:书房 | 风格:新古典 | 人气:11254 |
| 户型:大户型 | 楼盘: 春晖花园 | 面积:280平米 |
| 简介: 设计不是简单的堆砌, 而是化繁为简,化简为精,是满足实用需求基础上的美化再创造。 本案以现代简欧风格为主基调,首先考虑的是日常生活的功能完备,在此基础上加以艺术化的再创造.主体背景采用大面积石材、茶色镜面以及采光窗的结合虚实相间,层次清晰,大气而细腻。吊顶在暗藏中央空调布线的同时,进行不同空间的划分。 |






欧洲环保标准,杰出施工工艺
执前沿潮流牛耳
客户美誉度高达98.5%
贴心、省心更放心
| 关于安莱 | 经典案例 | 安莱服务 | 装修百科 | 品牌动态 |
安莱公众号
|
手机官网
|
全国热线 051380309999 |
|||||
| 公司简介 余承轩国际工作室 荣誉资质 企业文化 安莱装饰宣传片 联系我们 | 美式 北欧 欧式 地中海 东南亚 日式 新古典 | 楼盘户型 精英团队 视频样板房 安莱服务 | 家装经验 家居风水 家居软装 流行趋势 装饰常识 | 安莱新闻 活动专栏 行业新闻 |