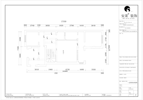
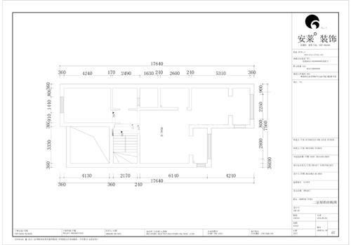
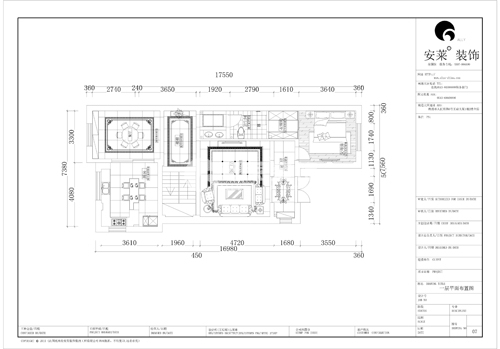
| 空间:客厅 | 风格:欧式 | 人气:11585 |
| 户型:别墅 | 楼盘: 其他地区 | 面积:260平米 |
| 简介: 此方案从简单到复杂,从颜色到质感都采用性价比最高的,在住房的装修中不能太过于艺术化,也不需要太多华而不实的装饰,所以简欧风格多了一些实用的装饰。注重空间的合理规划,也注重典雅高贵的体现。带着一丝小资情调,让生活充满了情趣感。 |









欧洲环保标准,杰出施工工艺
执前沿潮流牛耳
客户美誉度高达98.5%
贴心、省心更放心
| 关于安莱 | 经典案例 | 安莱服务 | 装修百科 | 品牌动态 |
安莱公众号
|
手机官网
|
全国热线 051380309999 |
|||||
| 公司简介 余承轩国际工作室 荣誉资质 企业文化 安莱装饰宣传片 联系我们 | 美式 北欧 欧式 地中海 东南亚 日式 新古典 | 楼盘户型 精英团队 视频样板房 安莱服务 | 家装经验 家居风水 家居软装 流行趋势 装饰常识 | 安莱新闻 活动专栏 行业新闻 |