| 空间:客厅 | 风格:欧式 | 人气:11916 |
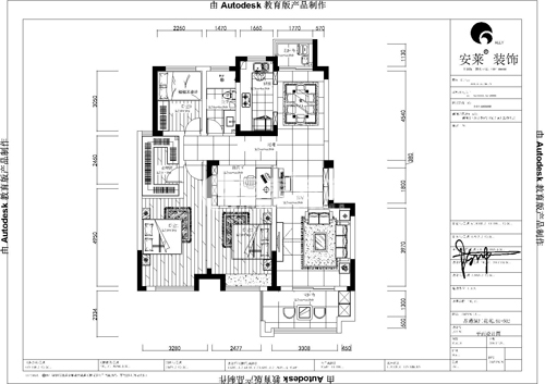
| 户型:三室二厅 | 楼盘: 其他地区 | 面积:133平米 |
| 简介: 本案设计是简欧风格,纯色艺术墙纸和欧式艺术墙纸搭配金箔的吊顶,使得空间更加舒适,温馨。餐厅的圆形吊顶配上艺术水晶吊灯,无形中提高了档次,让空间更加豪华。 电视背景墙采用的是地砖上墙的造型铺贴,对应沙发背景造型的处理,使得客厅更加豪华,大气,过道底端采用的是马赛克的设计处理,过道的照片墙,让空间更有家的感觉 |




欧洲环保标准,杰出施工工艺
执前沿潮流牛耳
客户美誉度高达98.5%
贴心、省心更放心
| 关于安莱 | 经典案例 | 安莱服务 | 装修百科 | 品牌动态 |
安莱公众号
|
手机官网
|
全国热线 051380309999 |
|||||
| 公司简介 余承轩国际工作室 荣誉资质 企业文化 安莱装饰宣传片 联系我们 | 美式 北欧 欧式 地中海 东南亚 日式 新古典 | 楼盘户型 精英团队 视频样板房 安莱服务 | 家装经验 家居风水 家居软装 流行趋势 装饰常识 | 安莱新闻 活动专栏 行业新闻 |