| 空间:玄关 | 风格:美式 | 人气:16219 |
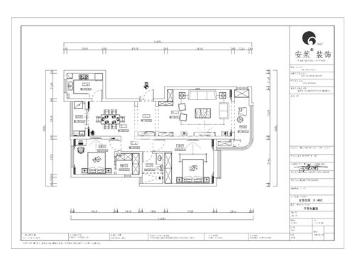
| 户型:两室两厅 | 楼盘: 其他地区 | 面积:125平米 |
| 简介:本案设计应业主要求做了两种不同的风格诠释,一种为简欧风格,简洁的地面拼花搭配欧式的家具和明暗对比比较强烈的大理石和马赛克,让颜色更加的丰富,整体的色调已暖色为主让家居更加的温馨。美式风格上面只是在原有简欧基础上面颜色做了一点调整,造型上面应业主要求简洁一点,这种颜色搭配更符合业主年龄段。 |








欧洲环保标准,杰出施工工艺
执前沿潮流牛耳
客户美誉度高达98.5%
贴心、省心更放心
| 关于安莱 | 经典案例 | 安莱服务 | 装修百科 | 品牌动态 |
安莱公众号
|
手机官网
|
全国热线 051380309999 |
|||||
| 公司简介 余承轩国际工作室 荣誉资质 企业文化 安莱装饰宣传片 联系我们 | 美式 北欧 欧式 地中海 东南亚 日式 新古典 | 楼盘户型 精英团队 视频样板房 安莱服务 | 家装经验 家居风水 家居软装 流行趋势 装饰常识 | 安莱新闻 活动专栏 行业新闻 |