| 空间:客厅 | 风格:新古典 | 人气:15557 |
| 户型:大户型 | 楼盘: 保利香槟国际 | 面积:149平米 |
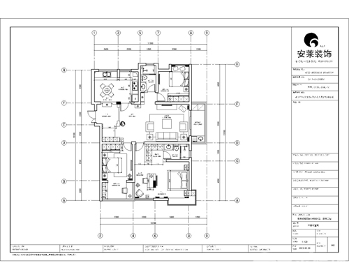
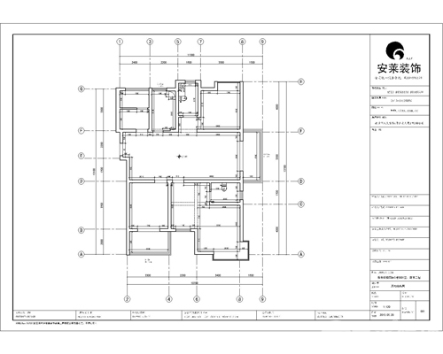
| 简介:整体空间结构比较平乏,缺少门厅,餐厅空间偏小,厨房空间偏小;主卧的功能空间分布不是很合理;进行空间功能调整,设计了独立门厅,区间独立,顶面层次分明 |




欧洲环保标准,杰出施工工艺
执前沿潮流牛耳
客户美誉度高达98.5%
贴心、省心更放心
| 关于安莱 | 经典案例 | 安莱服务 | 装修百科 | 品牌动态 |
安莱公众号
|
手机官网
|
全国热线 051380309999 |
|||||
| 公司简介 余承轩国际工作室 荣誉资质 企业文化 安莱装饰宣传片 联系我们 | 美式 北欧 欧式 地中海 东南亚 日式 新古典 | 楼盘户型 精英团队 视频样板房 安莱服务 | 家装经验 家居风水 家居软装 流行趋势 装饰常识 | 安莱新闻 活动专栏 行业新闻 |