| 空间:背景墙 | 风格:欧式 | 人气:15226 |
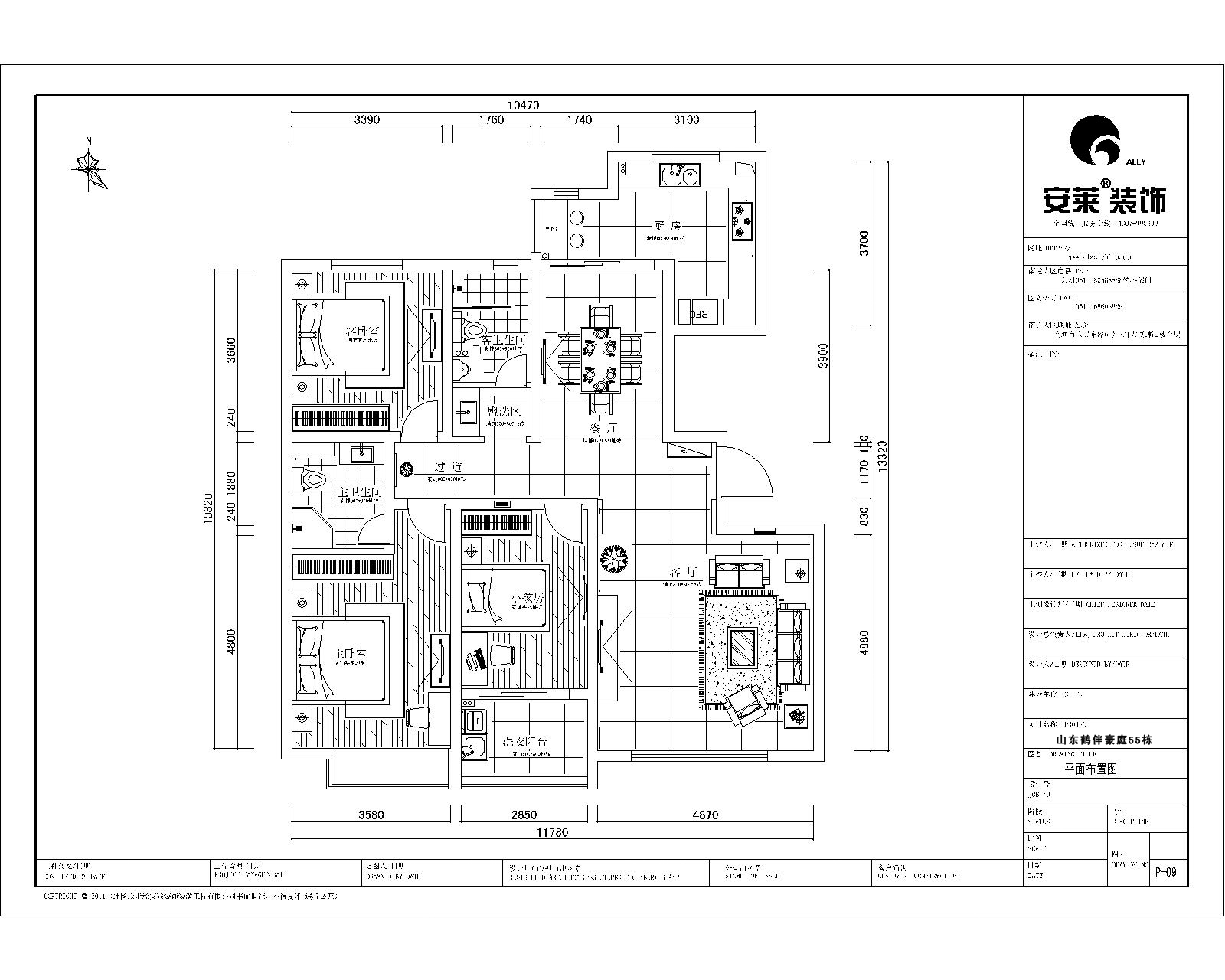
| 户型:三室一厅 | 楼盘: 鹤伴豪庭 | 面积:154平米 |
| 简介:本案为154㎡三室两厅的居室设计。业主为一对中年夫妇。针对海归的业主,设计采用美式田园优美的线条将空间进行了合理的分隔。面对扰嚷的都市生活,一处能让心灵沉淀的生活空间,是本房业主心中的一份渴望,也是本设计在该方案中所体现的主要思想。因此,开放式的大厅设计给人以通透之感,避免视觉给人带来的压迫感,可缓解业主工作一天的疲惫。没有夸张,不显浮华,通过简单流畅的线条的设计手法,将业主的工作空间巧妙地融入到生活空间中。 |






欧洲环保标准,杰出施工工艺
执前沿潮流牛耳
客户美誉度高达98.5%
贴心、省心更放心
| 关于安莱 | 经典案例 | 安莱服务 | 装修百科 | 品牌动态 |
安莱公众号
|
手机官网
|
全国热线 051380309999 |
|||||
| 公司简介 余承轩国际工作室 荣誉资质 企业文化 安莱装饰宣传片 联系我们 | 美式 北欧 欧式 地中海 东南亚 日式 新古典 | 楼盘户型 精英团队 视频样板房 安莱服务 | 家装经验 家居风水 家居软装 流行趋势 装饰常识 | 安莱新闻 活动专栏 行业新闻 |